NemesÉp Kft.
Nemes Zsolt építész tervező
intézmény
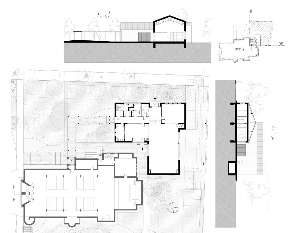
Budapest Albertfalvi Szent Mihály plébánia közösségi háza, 2021
Galéria:
Részletesebb leírás az
Építész fórumban itt olvasható
.